Grupu māja - LKNDZ

Grupu māja

Grupu māja būs mūsdienīgs pakalpojums ar terapeitisku vidi, kurā galvenais uzsvars būs uz cilvēku aktīvu dzīves pozīciju.

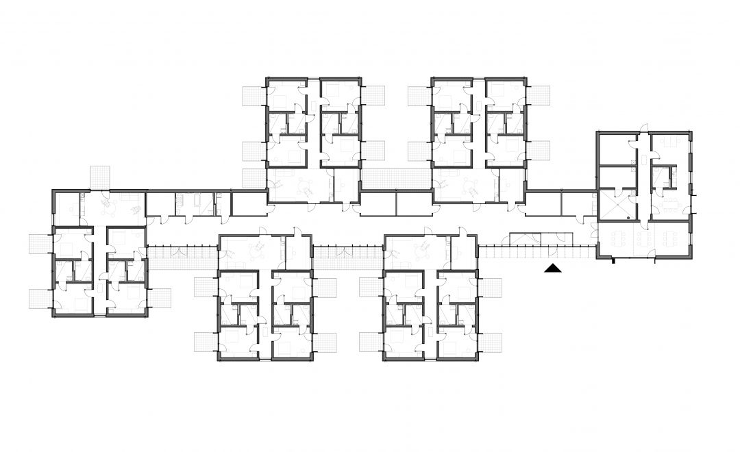
Šajā grupu mājā dzīvos 16 jauni cilvēki, kuri parasti tiek uzskatīti par pilnībā aprūpējamiem. Katram iemītniekam būs sava guļamistaba un sava vannas istaba. Lielā atpūtas istaba ar virtuvi būs kopīga četriem iemītniekiem. Mājas dizains būs veidots tā, lai katriem četriem iemītniekiem būtu atsevišķas mājas sajūta.

Ēkā būs paredzētas telpas arī darbiniekiem un liela kopīga telpa, kurā būs iespējams gan svinēt svētkus, gan organizēt dažādus pasākumus.

Saziedoti

636 667 € no 2 000 000 €

GRUPU MĀJAS PROJEKTA PIETURAS PUNKTI

31,8 % no 2’000 000.00Eur = 636 667.00Eur no 2’000 000.00Eur (98% uzņēmēju ziedojumi)

  1. Ideja 0.5%

    1. Meta izstrāde
      (arhitekte Liena Šiliņa - NOONSOON, ziedojums)

  2. Idejas/projekta attīstīšana 2%

    1. Projekta vadība
      (Jūlija Beļaņina - BYPASS, ziedojums)

  3. Zemes iegāde Vībotņu ielā 2A, Rīga (biedrība “Latvijas Kustība par neatkarīgu dzīvi” finanšu līdzekļi) 1%

    1. Zemes sadale
      (Gija Guļāne - Ģeo&Dēzija)

    2. Zemes gabala attīrīšana
      (kolektīvās talkas, ziedojums)

    3. Esošo pamatu demontāža
      (DGR serviss, ziedojums)

  4. Projekta izpēte 0.5%

    1. Ģeodēzija
      (Edgars Teležis - Ģeodevelopment)

    2. Ģeoloģija
      (Ilmārs Zeps - Ģeo Eko Risinājumi, ziedojums)

  5. Infrastruktūras projektēšana 2%

    1. Ceļa darbi
      (Andrejs Piesis, Rūta Aparniece - TOMUS, ziedojums)

    2. Elektroapgāde (ārējā)
      (Dmitrijs Kaškarovs, Vladimirs Varencovs, Vladimirs Boločko, ziedojums)

    3. Ūdensapgāde un kanalizācija (ārējā)
      (Jurijs Šepavalovs, ziedojums)

  6. Infrastruktūras izbūve

  7. Grupu mājas projektēšana 7%

    1. Arhitektūra
      (Liena Šiliņa - NOONSOON, ziedojums. Laura Auce, Dārta Dambe-Janeviča, Inese Rudzāte, Lauma Auziņa, ziedojums)

    2. Būvkonstrukcijas
      (Imants Trezuns, Inga Ozoliņa, Krišjānis Kucins - NORDIC HOMES, ziedojums. Jans Veličko, Rihards Trezuns, ziedojums)

    3. Vizualizācijas
      (Augusts Galiņš, ziedojums)

    4. Energoaudits
      (Ruta Vanaga, ziedojums)

    5. Apkure, Ventilācija, Klimata kontroles sistēmas, Ūdens un kanalizācija, Siltummehānika, Siltumapgāde (ārējā)
      (Sandis Jasevičs, Raimonds Bogdanovičs, Arnolds Reinsons, Austris Lauberts, Jurģis Zemītis - MEP SOLUTION, ziedojums)

    6. Elektroapgāde, Elektronisko sakaru sistēmas, Ugunsgrēka atklāšanas un trauksmes signalizācijas sistēmas
      (Jūlija Vasiļjeva, Dmitrijs Dimovs ,Artūrs Suharževskis, Igors Semjonovs - MKM Engineering, ziedojums)

    7. Apstādījumi
      (Lelde Bāra, ziedojums)

    8. Arboristi
      (Anita Albrante, Krists Albrants - HORTUS 5A, ziedojums)

  8. Būvdarbi

  9. Grupu mājas iekārtošana

Tā būs vieta, kur dzīvot un baudīt dzīvi, saņemot visu nepieciešamo profesionāļu palīdzību un atbalstu. Vienlaikus jauniešiem būs iespēja lemt par savu dzīvi, izdarīt izvēles, atbilstoši spējām un galvenais – būt aktīviem. Grupu māja būs kā drošības sala arī tām ģimenēm, kurām ir nepieciešams īslaicīgs atbalsts, jo šajā mājā būs iespēja saņemt arī Atelpas brīža pakalpojumu. Šī būs arī vieta, kur gūt zināšanas un iepazīt pieredzi visiem, kuri vēlēsies nākotnē veidot šādus pakalpojumus.

Projekts skaitļos

16 jauniešu patstāvīgas dzīves sākums
1200m2 ēkas platība
~9000m2 zemes kopējā platība

Jaunākā informācija

Vācam līdzekļus Grupu mājas pakalpojuma izveidei

Normāla dzīve sabiedrībā cilvēkiem ar smagiem attīstības traucējumiem. Kas tai ir nepieciešams? Pirmkārt normāls mājokļa pakalpojums!!! Grupu māja, kurā katram cilvēkam sava personīgā dzīvojamā telpa – istaba un personīgā vannas istaba. Nodrošinātas iespējas lemt par savu dzīvi un izdarīt ikdienas izvēles – ko ēdīšu, ko ģērbšu mugurā. Katram cilvēkam nepieciešams individuāls atbalsts sociālo kontaktu veidošanā un brīvā laika organizēšanā. Un normālas nodarbinātības aktivitātes darba dienās darba laikā (kuras nav tai pašā vidē, kurā cilvēks dzīvo). Mēs esam gatavi no mīta to pārvērst par realitāti! Paldies arhitektei Lienai Šiliņai par ieguldīto brīvprātīgo darbu arhitektūras meta izstrādē. Esam izstrādājuši konceptu un metodiku šī pakalpojuma sniegšanai. Šobrīd vācam līdzekļus Grupu mājas infrastruktūras izveidei.

Atbalstītāji